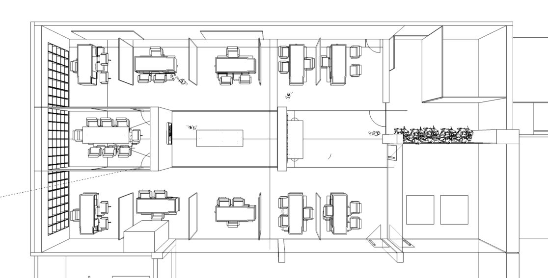
OMKASAN
OMKASAN is a cardboard company where they need a showroom for their product, a new office for the designers and renewal of the entrance hall. These three areas re-designed and created from scratch for the office.
- Project Year: 2013
- Project For: OMKASAN Firm.
- Project Category: Interior Design
- Personal Cont. : 3D Design and project drawings







